Notice: The Chamber's documentation and customs declaration services announce festive opening hours. Click here to view.

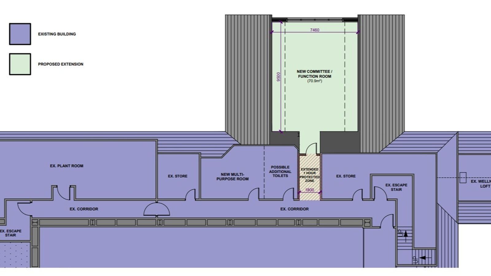
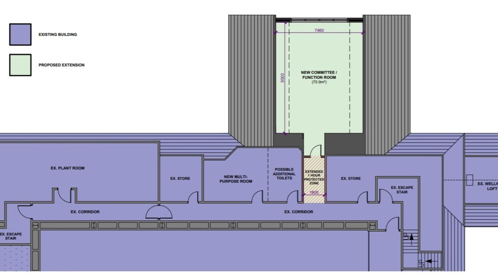
Garioch Sports Trust is delighted to confirm that following the granting of detailed planning permission it has secured the required grant funding to deliver our next capital project and facility enhancement at Garioch Sports Centre.

This latest project will see a sympathetic extension constructed to the rear of the building providing an additional four new changing rooms, toilets and showering facilities on the ground floor and a multi-purpose community space on the first floor.

These additions are desperately needed as the demand for the expanded facilities at GSC continues to grow and this extension will allow GSC to maximise the use of its external facilities whilst also servicing the demands of users on internal facilities.

The Trust is delighted to have again appointed local contractors as it continues its policy of supporting the local economy and those who continue to support the Trust as a local charity.

Works will commence before the end of the year and GSC will complete these with as little disruption as possible to the day to day running of the facilities.

This is another major milestone for GSC and a big thank you for your continued support and patience as these improvements are completed.

More like this…

View all