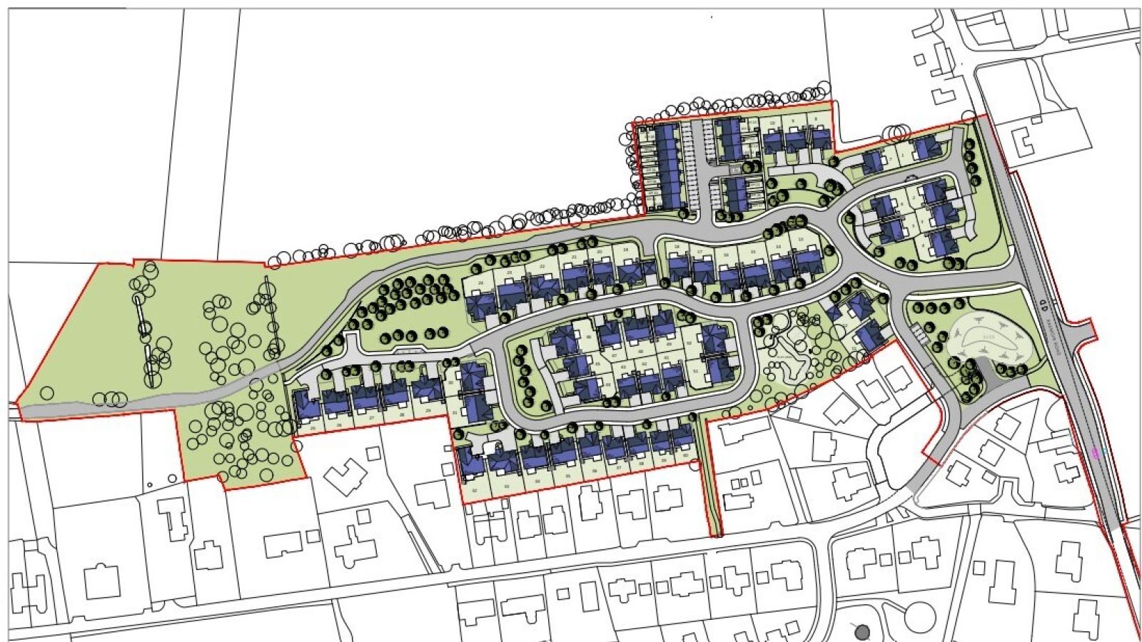
Plans for 68 new homes at Upper Lochton, Banchory, have been approved by Aberdeenshire Council’s Marr Area Committee.

Delivered by Cala Homes, the development will include 17 affordable properties.

The housebuilder closely consulted with the Council and local community throughout the planning process to address all views and mitigate the impact of the development.

The homes have been sympathetically designed to complement their surroundings and include a number of sustainable elements, including measures to support local wildlife.

Ross Maclennan, Land Director at Cala Homes (North), said: “After extensive consultation, we are pleased to be able to bring our plans to life.

“Sustainability plays a key role in the homes we will be bringing to Banchory, with solar panels, air source heat pumps, smart heating controls and EV charging capabilities incorporated into the designs. Our measures also extend beyond the homes and into our development surroundings too, ensuring that habitats are provided for native insects, mammals, plants and trees.

“Throughout our time creating this new neighbourhood, we will also be looking for opportunities to support the local area through our Community Pledge initiative which will see us create a bespoke programme of activity for Banchory, informed by local people.”

Cala’s Community Pledges look to address specific community needs through donations, volunteering, learning programmes, support initiatives and much more.

Ross added: “Our Community Pledge includes school outreach programmes such as Land to Life, which details how we bring a community to life right from the planning stages, and Stay Safe, Stay Away, which highlights the dangers of playing near construction sites.

“We also look for opportunities to help specific charities and organisations that benefit our communities.”

For more information visit www.cala.co.uk.

More like this…

View all